Italiano
178.000 €

QUADRILOCALE ultimo piano in zona servitissima, via Giussani

4 o più locali in vendita • Como - Via Giussani, 43
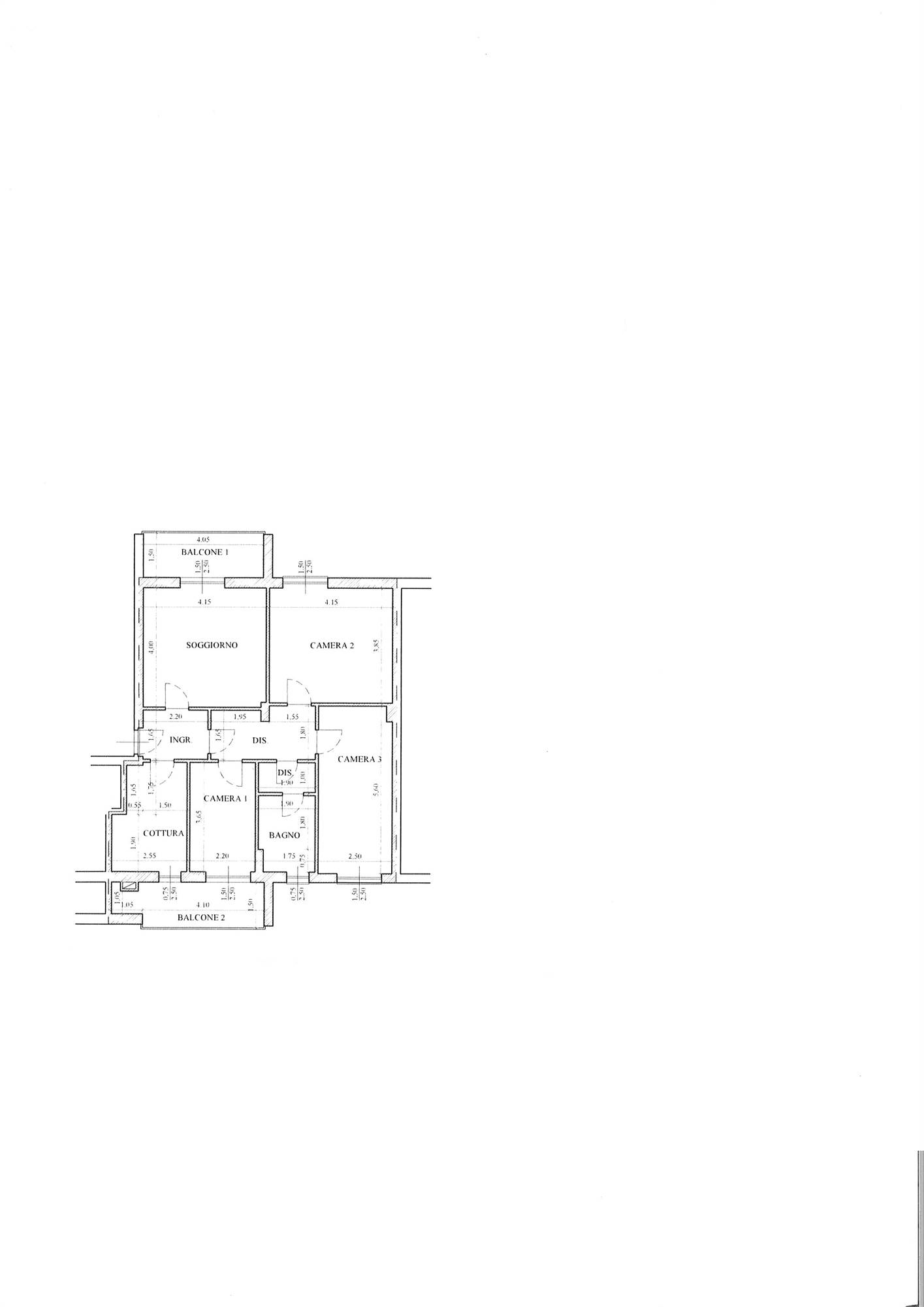
Como, località Rebbio, vendiamo appartamento quadrilocale posto al quarto e ultimo piano di bella palazzina residenziale. L'appartamento si compone di ingresso, cucina abitabile con balcone coperto, soggiorno con secondo ampio balcone, disimpegno notte, camera matrimoniale e due camere ragazzi, bagno con antibagno. L'appartamento è dotato di ampia cantina. Ampia disponibilità di parcheggio coperto e scoperto all'interno della proprietà condominiale. La palazzina è immersa in un bel giardino condominiale e adiacente ad un grande giardino comunale attrezzato. La posizione è veramente comoda per tutti i servizi di quartiere numerosi supermercati e gallerie commerciali, ed è perfettamente collegata al centro cittadino con diverse linee di trasporto pubblico. Comodissimi anche l'accesso autostradale e la stazione ferroviaria di Camerlata raggiungibile a piedi. L'immobile è libero e pronto per essere personalizzato nelle sue sole finiture interne, i serramenti esterni e le tapparelle sono già stati sostituiti. (La ristrutturazione potrebbe prevedere la realizzazione del secondo bagno senza alcuna difficoltà tecnica). Classe energetica F kwh/mqa 260,26 (migliorabile di 2/3 classi a seguito di ristrutturazione interna)
Prezzo € 178.000,00
alius casa ...valori che restano
Caratteristiche principali
Codice
052
Città
Como
Categoria
4 o più locali
Prezzo
178.000 €
Locali
4
Camere
3
Bagni
1
Mq
98
Posti auto
2
Balconi
2
Classe energetica
F
260,26

Accessori: Ascensore, Doppi Vetri, Video Citofono

Distanze
Posizione
Centro3 km
Lago3 km
Parco pubblico10 m
Istruzione
Scuola materna100 m
Scuola elementare100 m
Mezzi di trasporto
Fermata metro-bus-tram50 m
Stazione dei treni1,5 km
Altri servizi
Farmacia400 m
Supermercato200 m
Mappa
Via Giussani 43, Como (CO)
Condividi su
Cookie preference